




产品详情
拱脚砖有高铝质,有粘土质,他们的氧化铝含量不同,理化性能不同,当然价格也是不一样的。
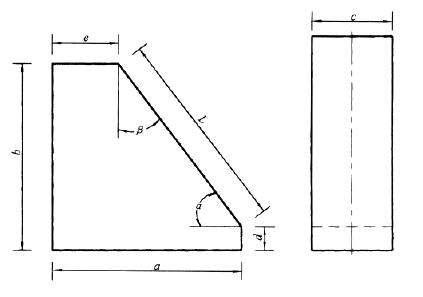
通用耐火砖拱脚砖形状尺寸
拱脚砖砖尺寸详见表1,形状见图1。

表1 拱脚砖砖尺寸
| 砖号 | 尺寸/mm | 倾斜角 | 规格 | 体积/cm3 | |||||
| L | a | b | c | d | e | α/β/(°) | |||
| T-131 | 230 | 199 | 266 | 114 | 67 | 84 | 60/30 | 230*60°*114 | 4730 |
| T-132 | 230 | 199 | 266 | 114 | 90 | 51 | 50/40 | 230*50°*114 | 4549.7 |
| T-133 | 300 | 199 | 333 | 73 | 73 | 49 | 60/30 | 300*60°*73 | 3414 |
| T-134 | 300 | 266 | 333 | 73 | 103 | 73 | 50/40 | 300*50°*73 | 4846 |
| T-135 | 380 | 266 | 400 | 73 | 71 | 76 | 60/30 | 380*60°*73 | 5485.6 |
| T-136 | 380 | 333 | 333 | 73 | 42 | 89 | 50/40 | 380*50°*73 | 5503 |
| T-137 | 460 | 333 | 467 | 73 | 69 | 103 | 60/30 | 460*60°*73 | 8011.1 |
| T-138 | 460 | 400 | 400 | 73 | 48 | 104 | 50/40 | 460*50°*73 | 7877 |
上一篇:平枚方枚砖
下一篇:1.0轻质粘土砖指标
客服中心